Bouwnummer 1702

6512 AD Nijmegen
Energielabel A+++
  • 86 m²
  • 2 kamers
  • Vrij op naam
  • Appartement

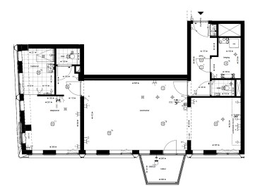
Omschrijving

Een verrassend ruim tweekamerappartement met royale woonkamer en balkon gelegen op het zuiden, inclusief 1 parkeerplaats.

Vraagprijs
€ 569.000 v.o.n.
Soort constructie
Nieuwbouw
Woonlagen
1 etages
Woonoppervlakte
86 m²
Inhoud
258 m³
Bouwjaar
2027
Aantal slaapkamers
1 Slaapkamers
Garage type
Parkeerplaats
Energielabel
A+++

Meer weten over Het nieuwe Metterswane?

Je aanvraag zal worden opgevolgd door Vivantus Algemeen (Nieuwbouw/Verhuur).

83303514_24074_AI_Foto_inpassing_stp1_V01.jpg

Om onze website gemakkelijker en persoonlijker te maker, gebruiken we cookies en vergelijkbare technieken. Je kunt altijd zelf kiezen welke soorten cookies je wilt toestaan. Lees hierover meer in onze cookieverklaring.

Wij gebruiken foto's van freepik.com