Lange Nieuwstraat 197, Tilburg

5041 DD Tilburg
Energielabel E
  • Starters opgelet
  • Royale achtertuin
  • Nabij het stadscentrum
  • Voorzieningen nabij
  • Top locatie
Vraagprijs
€ 359.000 k.k.
Soort constructie
Bestaande bouw
Type
Eengezinswoning en tussenwoning
Locatie
In centrum en in woonwijk
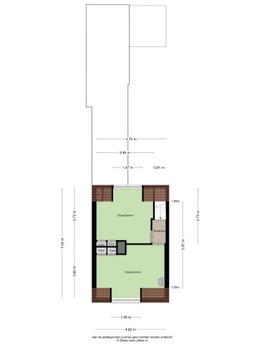
Woonoppervlakte
86 m²
Perceel
166 m²
Inhoud
325 m³
Bouwjaar
1905
Tuin
Achtertuin
Hoofdtuin positie
Noord
Garage type
Geen garage
Verwarming
C.v.-ketel
Energielabel
E Hoe kan ik mijn huis verduurzamen? Huis verduurzamen?
Uitgelicht

Voel jij je al thuis?

Prachtig daglicht

Prachtig daglicht

Hoe richt jij het in?

Deze tussenwoning met een woonoppervlakte van 86 m² en een perceel van 166 m² maakt meteen indruk: de voordeur heeft een klassieke uitstraling, met subtiele verwijzingen naar de bouwstijl van vroeger. Eenmaal binnen ervaar je meteen de warme en knusse sfeer die deze woning uitstraalt.

De begane grond biedt een lichte woonkamer, met net dat beetje extra dankzij de grote ramen die het daglicht prachtig naar binnen laten vallen. De  houten vloer en neutrale tinten zorgen ervoor dat jij je meubels naar hartenlust kunt plaatsen.

Complete keuken

Complete keuken

Ruime badkamer

de verrassend ruime keuken, voorzien van inbouwapparatuur zoals een 5 pits gaskookplaat, oven afzuigkap en vaatwasser. 

De badkamer bevindt zich eveneens op de begane grond, praktisch én stijlvol ingericht. Start je dag met een verkwikkende inloopdouche of relax na een lange werkdag in het ligbad. Naast de badkamer is het separate toilet te vinden – altijd handig!

Twee slaapkamers

Twee slaapkamers

Oude elementen

Boven vind je twee keurige slaapkamers, beide voorzien van inbouwkasten. De oude elementen zoals de houten balken en originele deuren geven de ruimtes een uniek karakter. Van een knusse master bedroom tot een gezellige kinderkamer of thuiswerkplek: de mogelijkheden zijn eindeloos.

Royale achtertuin

Royale achtertuin

Volop genieten

De royale achtertuin op het noorden geniet je hier volop van de zon in de zomermaanden. Dankzij het ruime formaat is er plek voor een eettafel, loungebank, speeltoestellen en zelfs je eigen kleine moestuin. Zie jij jezelf al barbecueën met vrienden of ontspannen een boek lezen in de namiddagzon?

Vragen over deze woning?

Onze verkoopmakelaar Lars Hutten staat voor je klaar.
Stel een vraag
Omslagfoto brochure

De verkoper vertelt

87664003_626909br_7249676_1639304_photos_lange-nieuwstraat-197LangeNieuwstraat1975041DDTilburgNL-01.jpg

Om onze website gemakkelijker en persoonlijker te maker, gebruiken we cookies en vergelijkbare technieken. Je kunt altijd zelf kiezen welke soorten cookies je wilt toestaan. Lees hierover meer in onze cookieverklaring.

Wij gebruiken foto's van freepik.com