Pachtersveld 22, Apeldoorn

7327 CR Apeldoorn
Energielabel C
  • Energielabel C
  • Ruime woonkamer
  • Royale tuin
  • 4 slaapkamers
  • Kindvriendelijke buurt
Vraagprijs
€ 420.000 k.k.
Soort constructie
Bestaande bouw
Type
Eengezinswoning en tussenwoning
Locatie
Aan rustige weg en in woonwijk
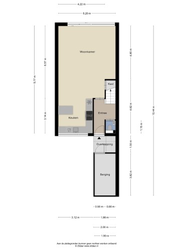
Woonoppervlakte
134 m²
Perceel
164 m²
Inhoud
456 m³
Bouwjaar
1974
Aantal slaapkamers
4 Slaapkamers
Tuin
Achtertuin en voortuin
Hoofdtuin positie
Zuid
Garage type
Geen garage en parkeerplaats
Verwarming
C.v.-ketel
Energielabel
C Hoe kan ik mijn huis verduurzamen? Huis verduurzamen?
Uitgelicht

Voel jij je al thuis?

Ruime woonkamer

Ruime woonkamer

Veel lichtinval

Bij binnenkomst merk je meteen de fijne sfeer van dit huis. De hal is praktisch en geeft toegang tot de ruime, lichte woonkamer. Hier zorgt de grote schuifpui voor een mooie verbinding tussen binnen en buiten. Je hebt genoeg ruimte om een gezellige zithoek en een eethoek in te richten. Het daglicht stroomt naar binnen en maakt dit een plek waar je graag samenkomt met je gezin of vrienden.

Nette keuken

Nette keuken

Fijn koken

Aan de voorkant van de woning vind je de keuken. Deze is in 2025 compleet vernieuwd en van alle gemakken voorzien. Denk aan een modern design en inbouwapparatuur zoals een oven, koelkast, kookplaat en vaatwasser. Koken wordt hier niet alleen praktisch, maar ook nog eens leuk.

Vier ruime slaapkamers

Vier ruime slaapkamers

Praktisch in te delen

Op de eerste verdieping bevinden zich drie ruime slaapkamers, allemaal met genoeg lichtinval en plek voor een bed, kast en bureau. De badkamer, ook in 2025 vernieuwd, biedt een heerlijk ligbad, een inloopdouche, een wastafelmeubel en een toilet. Alles is strak en modern afgewerkt.

De tweede verdieping is verrassend ruim. Over de gehele lengte van de woning vind je hier een grote vierde slaapkamer, een overloop met wasmachine- en drogeraansluiting en nog een handige bergzolder die via een vlizotrap bereikbaar is. Deze extra opslagruimte komt altijd van pas!

Zonnige tuin

Zonnige tuin

Multifunctionele ruimte

De tuin is ruim en ligt ideaal op het zuiden, waardoor je hier de hele dag door van de zon kunt genieten. Of je nu een boek leest op het terras of een barbecue organiseert met vrienden, dit is een fijne plek voor jong en oud. Extra handig is het bijgebouw, dat eveneens in 2025 is gebouwd. Deze multifunctionele ruimte is volledig geïsoleerd en voorzien van airconditioning, waardoor het perfect is als thuiswerkplek, hobbyruimte of bijvoorbeeld een speelkamer.

Wil je hier meer over lezen?

Download de brochure

Vragen over deze woning?

Onze verkoopmakelaar Frank Dekker staat voor je klaar.
Stel een vraag
Omslagfoto brochure

De verkoper vertelt

‘We hebben hier een korte tijd, maar met heel veel plezier gewoond en verhuizen nu weer terug naar Amersfoort waar we vandaan komen. Maar we gaan deze woning zeker missen: de buurt is rustig, fijn en social en onze kinderen genoten van het grote veld en schoolplein vlak naast de woning. Ook het vrije en groene uitzicht, de stilte en de vogelgeluiden gaan we absoluut missen. Een heerlijk plekje en een fijn huis!’

87580749_611145br_7238776_1634831_photos_pachtersveld-22Pachtersveld227327CRApeldoornNL-01.jpg

Om onze website gemakkelijker en persoonlijker te maker, gebruiken we cookies en vergelijkbare technieken. Je kunt altijd zelf kiezen welke soorten cookies je wilt toestaan. Lees hierover meer in onze cookieverklaring.

Wij gebruiken foto's van freepik.com