Schoutstraat 23, Geldrop

5663 EX Geldrop
Energielabel B
  • Gewilde locatie
  • 4 Slaapkamers
  • Instapklaar
  • Energielabel B
  • Snel beschikbaar
Vraagprijs
€ 499.000 k.k.
Soort constructie
Bestaande bouw
Type
Eengezinswoning en tussenwoning
Locatie
Aan park, aan rustige weg en in woonwijk
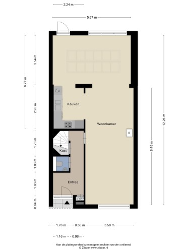
Woonoppervlakte
146 m²
Perceel
187 m²
Inhoud
518 m³
Bouwjaar
1966
Aantal slaapkamers
4 Slaapkamers
Tuin
Achtertuin en voortuin
Hoofdtuin positie
West
Garage type
Geen garage
Verwarming
C.v.-ketel
Energielabel
B Hoe kan ik mijn huis verduurzamen? Huis verduurzamen?
Uitgelicht

Voel jij je al thuis?

Licht & leefruimte

Licht & leefruimte

uitgebouwde woonkamer

De uitgebouwde woonkamer vormt het hart van de woning. Dankzij de lichtstraat en grote raampartijen stroomt het daglicht rijkelijk naar binnen. De PVC-vloer en sfeervolle houtkachel zorgen voor warmte en karakter. Hier geniet je van lange avonden met familie en vrienden in een ruimte die comfort en stijl moeiteloos combineert.

 

Koken met gemak

Koken met gemak

open keuken

De open keuken in praktische L-opstelling sluit perfect aan op de woonkamer. Voorzien van diverse inbouwapparatuur en volop werkruimte is dit een fijne plek voor iedere kookliefhebber. Of je nu snel ontbijt of uitgebreid dineert, hier bereid je met plezier de lekkerste gerechten.

Vier ruime kamers

Vier ruime kamers

met complete badkamer

Op de eerste verdieping bevinden zich drie comfortabele slaapkamers en een complete badkamer met ligbad, douche en toilet. De tweede verdieping biedt een royale zolderslaapkamer met dakkapel én een extra kamer voor werk of hobby. Ideaal voor gezinnen of thuiswerkers die ruimte zoeken.

Zon tot in de avond

Zon tot in de avond

met terrasoverkapping

De achtertuin op het westen is een heerlijke plek om te ontspannen. Met terrasoverkapping, gazon en vaste beplanting geniet je hier tot laat van de zon. De praktische berging en vrije achterom maken het geheel compleet. Een fijne buitenruimte waar comfort en privacy samenkomen.

Wil je hier meer over lezen?

Download de brochure

Vragen over deze woning?

Onze verkoopmakelaar Pieter Adelaars staat voor je klaar.
Stel een vraag
Omslagfoto brochure

De verkoper vertelt

Deze fijne eengezinswoning in Zesgehuchten biedt een ruime, lichte woonkamer, vier slaapkamers en een zonnige, sfeervolle tuin op het westen met schuur en gezellige overkapping.

De woning ligt in de groene en rustige wijk Beekweide, met alles binnen handbereik: station, winkels, scholen en het centrum van Geldrop, terwijl Eindhoven eenvoudig bereikbaar is.

Ideaal voor wie op zoek is naar ruimte, rust en een fijne woonomgeving.

86912498_578588br_7164931_1625397_photos_schoutstraat-23Schoutstraat235663EXGeldrop-01.jpg

Om onze website gemakkelijker en persoonlijker te maker, gebruiken we cookies en vergelijkbare technieken. Je kunt altijd zelf kiezen welke soorten cookies je wilt toestaan. Lees hierover meer in onze cookieverklaring.

Wij gebruiken foto's van freepik.com