Bouvigne 26, Eindhoven

5653 LH Eindhoven
Energielabel B
  • Instapklaar
  • 12 zonnepanelen
  • Uitbouw
  • 3 Slaapkamers
  • 2 bergingen
Vraagprijs
€ 499.000 k.k.
Soort constructie
Bestaande bouw
Type
Eengezinswoning en tussenwoning
Locatie
Aan park, aan rustige weg en in woonwijk
Woonoppervlakte
142 m²
Perceel
184 m²
Inhoud
503 m³
Bouwjaar
1974
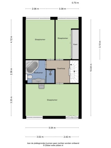
Aantal slaapkamers
4 Slaapkamers
Tuin
Achtertuin en voortuin
Hoofdtuin positie
Oost
Garage type
Geen garage
Energielabel
B Hoe kan ik mijn huis verduurzamen? Huis verduurzamen?
Uitgelicht

Voel jij je al thuis?

Grote ramen

Zeeën van ruimte

Tuin gerichte woonkamer

De woonkamer biedt een zee van ruimte! Dankzij de slimme uitbouw kun je hier moeiteloos een luxe zithoek creëren waar je gezellig met vrienden kunt bijkletsen of ontspannen een film kijkt met de kinderen. Met ruimte voor een royale eettafel is dit de perfecte plek voor avondmaaltijden of zondagsbrunches. Door de schuifpui stap je zo je eigen verzorgde achtertuin in, waar het ochtendlicht je ontbijt nét dat beetje extra warmte geeft.

Een ruime open keuken

Moderne apparatuur

Wat maak jij klaar?

De open keuken aan de voorzijde is een droom voor elke thuiskok. Uitgerust met een greeploze hoekopstelling, een vernieuwde Siemens-inductiekookplaat en moderne apparatuur zoals een vaatwasser en koelkast, maakt koken hier nóg leuker. Ook fijn: de klimaatkast om jouw favoriete wijnen op de perfecte temperatuur te houden. Gezellig koken en kletsen terwijl de kinderen aan tafel kleuren? Dat doe je hier met gemak.

Drie slaapkamers

Een moderne badkamer

Royaal en overzichtelijk

De eerste verdieping voelt royaal en overzichtelijk. Drie slaapkamers met veel lichtinval zorgen ervoor dat iedereen zijn eigen plekje heeft. De eerste, ruime slaapkamer met Frans balkon over de volle breedte is een heerlijke master bedroom, terwijl de twee slaapkamers aan de achterzijde perfect zijn als kinderkamer, thuiskantoor of hobbyruimte.

De moderne badkamer is het toppunt van luxe en comfort. Een heerlijk ligbad voor de koude winteravonden, een inloopdouche voor snelle ochtenden en een strak wastafelmeubel mét opbergruimte dat je dagelijkse routine nét iets soepeler maakt. Hier kom je om te ontspannen en tot rust te komen.

Een ochtendzonnetje

Geniet van de ruimte

Op het Oosten

De achtertuin met ochtendzon op het oosten is de plek waar je komende lente en zomer te vinden zult zijn. Begin de dag in alle rust met een kop koffie op het terras, terwijl de kinderen spelen. De twee ruime bergingen bieden voldoende plek voor fietsen, gereedschap en tuinspullen. En de achterom? Ideaal voor een makkelijke toegang én extra privacy.

Wil je hier meer over lezen?

Download de brochure

Vragen over deze woning?

Onze verkoopmakelaar Priscilla van Limpt staat voor je klaar.
Stel een vraag
Omslagfoto brochure

De verkoper vertelt

Om onze website gemakkelijker en persoonlijker te maker, gebruiken we cookies en vergelijkbare technieken. Je kunt altijd zelf kiezen welke soorten cookies je wilt toestaan. Lees hierover meer in onze cookieverklaring.

Wij gebruiken foto's van freepik.com