Molenweg 3

6082 NB Buggenum
Energielabel A
  • Ruime woning van 126m2
  • Levensloopbestendig wonen
  • Instapklaar en comfortabel
  • Riante tuin
  • Fijne rustige woonomgeving
Vraagprijs
€ 449.000 k.k.
Soort constructie
Bestaande bouw
Type
2-onder-1-kapwoning en eengezinswoning
Locatie
Aan rustige weg en vrij uitzicht
Woonlagen
2 etages
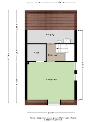
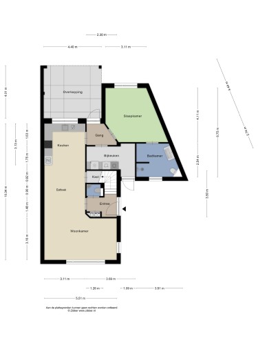
Woonoppervlakte
129 m²
Inhoud
456 m³
Bouwjaar
2021
Aantal slaapkamers
2 Slaapkamers
Tuin
Achtertuin en voortuin
Garage type
Geen garage
Schuur
Vrijstaand hout
Verwarming
C.v.-ketel en vloerverwarming geheel
Energielabel
A Hoe kan ik mijn huis verduurzamen? Huis verduurzamen?
Uitgelicht

Voel jij je al thuis?

Instapklaar

Instapklaar

Moderne afwerking

Bij binnenkomst overvalt je meteen een gevoel van ruimte en luxe. De hal leidt je naar de lichte woonkamer, die door grote raampartijen baadt in het daglicht. Hier voel je de vrijheid om te ontspannen én te genieten. Stel je voor: een zachte stoel met dat uitzicht – adembenemend, rustgevend en iedere dag uniek.

De strak afgewerkte moderne keuken is een plaatje om te zien: voorzien van hoogwaardige apparatuur, ruime werkbladen en perfect ingedeeld. Of je nu uitgebreid wilt koken of snel een kop koffie wilt zetten, alles ligt binnen handbereik. Het leven is hier zo comfortabel en praktisch als het maar zijn kan.

Levensloopbestendig

Levensloopbestendig

Comfortabel

Deze levensloopbestendige woning biedt daarnaast de luxe van slaap- en badkamer op de begane grond. De ruime hoofdslaapkamer kijkt uit op de fraai aangelegde tuin. Wat wil je nog meer? Het is hier niet alleen comfortabel wonen, maar ook slim en toekomstgericht. Geen trappen meer, geen gedoe – gewoon genieten. De badkamer is heerlijk ruim en voorzien van een moderne inloopdouche, wastafelmeubel en fris tegelwerk. Comfort en stijl worden hier moeiteloos gecombineerd

Extra ruimte

Tweede slaapkamer

Extra ruimte

Maar wacht, er is meer! Een ruime tweede slaapkamer, ideaal als logeerkamer, hobbyruimte of zelfs een thuiskantoor. Indien gewenst kun je op de verdieping ook nog een Derde slaapkamer of tweede badkamer realiseren. De aansluitingen voor de badkamer liggen er al! Hier is ruimte om jouw leven in te richten zoals jij dat wilt. 

Genieten

Op het noordoosten

Met overkapping

En die 391 m² perceel? Het huis wordt omlijst door een prachtig aangelegde tuin, met een ligging op het noordoosten: heerlijk voor een kopje thee in de ochtendzon of een gezellige barbecue met familie en vrienden.

Wil je hier meer over lezen?

Download de brochure

Vragen over deze woning?

Onze verkoopmakelaar Joost van der Zanden staat voor je klaar.
Stel een vraag
Omslagfoto brochure

De verkoper vertelt

De Molenweg in Buggenum .....


wat een heerlijke plek om te wonen. Zeker in deze luxe en levensloopbestendige woning. Wij hebben hier een heerlijke en ontspannen tijd gekend en zouden dit ook nooit hebben opgegeven als we onze droomwoning niet hadden gevonden. Het voordeel is wel dat we nu iemand anders blij kunnen maken met deze superfijne woning. De woning heeft het gehele jaar een heerlijk klimaat binnen en zeer lage energiekosten. Luxe, gemak en rust met een geweldig uitzicht aan de achterzijde. Het is hier echt heerlijk genieten terwijl alle voorzieningen lekker in de buurt aanwezig zijn. Met veel liefde en een traan zullen we de sleutels overdragen aan u als nieuwe eigenaar.

83800995_83736415_519697br_6873636_1590586_photosMolenweg36082NBBuggenum-02.jpg

Om onze website gemakkelijker en persoonlijker te maker, gebruiken we cookies en vergelijkbare technieken. Je kunt altijd zelf kiezen welke soorten cookies je wilt toestaan. Lees hierover meer in onze cookieverklaring.

Wij gebruiken foto's van freepik.com