




Nijvelstraat 1
- Leuke tweekapper
- Slaapkamer beneden
- 5 Slaapkamers
- Gewilde locatie
- Energielabel B
- Prijs
- € 535.000 k.k.
- Soort constructie
- Bestaande bouw
- Huis type
- 2-onder-1-kapwoning en eengezinswoning
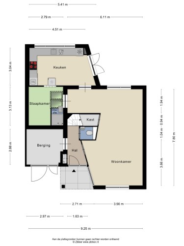
- Woonoppervlakte
- 138 m²
- Capaciteit
- 526 m³
- Bouwjaar
- 1997
- Aantal slaapkamers
- 5 Slaapkamers
- Tuin
- Achtertuin en voortuin
- Garage type
- Geen garage
- Schuur
- Inpandig
- Verwarming
- C.v.-ketel
- Energielabel
- B Hoe kan ik mijn huis verduurzamen? Huis verduurzamen?
Resultaten
Voel jij je al thuis?

Welkom thuis
Gezellige sfeer
Eet smakelijk
Wat ga jij bereiden?
Welterusten
Keurige badkamer
Ruime tuin
Genieten
Vragen over deze woning?


De verkoper vertelt
Direct online een bezichtiging inplannen? Ga naar onze website.
Ben je op zoek naar een leuke tweekapper op een gewilde locatie? Zoek niet verder, wij hebben de perfecte woning voor je beschikbaar! Met 1 slaapkamer beneden en maar liefst 4 slaapkamers verdeeld over de verdiepingen biedt deze woning alle ruimte die je nodig hebt. Verder kun je hier rekenen op een lichte woonkamer, nette keuken, keurige badkamer en een zonnige tuin.
Deze charmante tweekapper is gelegen in de populaire buurt “’t Zwin” op korte afstand van alle gewenste voorzieningen. De gewilde locatie, gecombineerd met het energielabel B, maakt dit huis een uitstekende investering voor de toekomst.
Enthousiast geworden en wil je de woning graag van binnen zien? Neem contact op met ons kantoor voor een bezichtiging aan Nijvelstraat 1.