Rooi Hartenpark 43, Tilburg

5038 NL Tilburg
Energielabel A++
  • Uiterst riante gezinswoning
  • Met eigen parkeerplaats
  • Privacybiedende tuin op het zuiden
  • Energielabel A++
  • Prachtige en exclusieve woonlocatie
Vraagprijs
€ 729.000 k.k.
Soort constructie
Bestaande bouw
Type
Eengezinswoning en tussenwoning
Locatie
Aan rustige weg, in woonwijk en vrij uitzicht
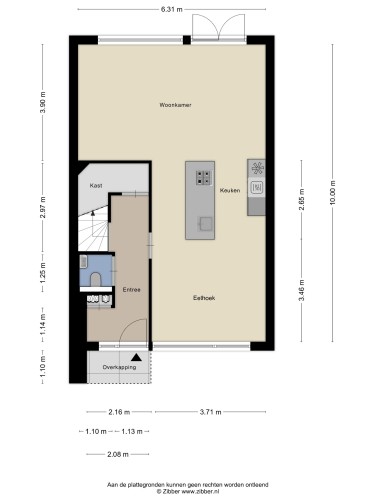
Woonoppervlakte
156 m²
Perceel
163 m²
Inhoud
552 m³
Bouwjaar
2015
Aantal slaapkamers
4 Slaapkamers
Tuin
Achtertuin
Hoofdtuin positie
Zuid
Garage type
Geen garage en parkeerplaats
Verwarming
C.v.-ketel en vloerverwarming geheel
Energielabel
A++ Hoe kan ik mijn huis verduurzamen? Huis verduurzamen?
Uitgelicht

Voel jij je al thuis?

Kom binnen!

Kom binnen!

Goed onderhouden

Welkom in het bijzondere en karaktervolle Rooi Hartenpark, een exclusieve wijk in Tilburg die historie en modern wooncomfort perfect combineert. Deze riante (woonoppervlakte van maar bijna 160 m²), hoogwaardige afgewerkte en energiezuinige woning biedt alles waar een jong gezin naar op zoek is: ruimte, licht en een plek in een veilige, kindvriendelijke buurt. 

Woonkeuken

Woonkeuken

Met modern kookeiland

De luxe woonkeuken van maar liefst 24 m² heeft alles wat je nodig hebt: een modern kookeiland met bar, hoogwaardige inbouwapparatuur zoals een combi-magnetron, Quooker en vaatwasser, en veel werk- en opbergruimte. Het royale zitgedeelte biedt een spectaculair uitzicht over het monumentale Rooi Hartenpark – een bijzondere plek om samen te komen.

Fijne lichtinval

Fijne lichtinval

Tuingerichte woonkamer

De woonkamer (25 m²) is licht, ruim en comfortabel, met grote raampartijen die prachtig zicht bieden op de tuin. Door de tuingerichte ligging voelt deze ruimte als een harmonieuze verlenging van het buitenleven. Dankzij de hoogwaardige afwerking en vloerverwarming is het hier elk seizoen genieten, of je nu relaxt met een boek of een gezellige avond doorbrengt met vrienden en familie.

2 slaapkamers

2 slaapkamers

Met badkamer

Op de eerste verdieping tref je twee royale slaapkamers die beide strak zijn afgewerkt met PVC-vloeren en veel natuurlijk licht. Ideaal als master bedroom en kinderkamer of bijvoorbeeld een werkruimte. Hier heb je alle mogelijkheden om jouw persoonlijke woonwensen te realiseren. De badkamer op de eerste verdieping is een oase van rust en comfort. Een royale inloopdouche, een stijlvol wastafelmeubel en strakke tegels maken deze ruimte helemaal af. Perfect om de dag fris te beginnen of heerlijk ontspannen af te sluiten.

2 extra slaapkamers

2 extra slaapkamers

Met badkamer

De tweede verdieping biedt nog eens twee ruime slaapkamers, ideaal voor opgroeiende kinderen, een logeerkamer of een thuiswerkplek. De ruimtes zijn licht, functioneel en voorzien van vloerverwarming – compleet voorbereid op jouw wensen. Stap in een luxe leefstijl met deze tweede badkamer op de bovenste verdieping. Compleet met een inloopdouche en modern wastafelmeubel zorgt deze extra badkamer voor extra gemak in drukke ochtenden of fijne privacy voor gasten.Praktische wasruimte
Ideale en grote ruimte met de opstelling voor de wasmachine, WTW-installatie en HR-combiketel. Alles is ontworpen met oog voor comfort en gebruiksgemak.  

Onderhoudsvriendelijk

Onderhoudsvriendelijk

Met achterom

De onderhoudsvriendelijk aangelegde, zonnige tuin krijgt extra allure door de ligging op het zuiden. Of je nu ontspannen wil loungen onder de sfeervolle overkapping, een uitgebreide barbecue organiseert of simpelweg geniet van je groene oase – het kan hier allemaal. En dankzij de handige achterom kom je altijd makkelijk thuis. Extra pluspunt: parkeren kan praktisch voor de deur op je eigen parkeerplaats op het nabijgelegen mandelige binnenterrein.  

Historische locatie

Historisch gelegen

Nabij het centrum

De woning bevindt zich in het karaktervolle en historische Rooi Hartenpark, een unieke plek in Tilburg. Hier woon je midden in de rust van het park, omringd door authentieke kloosterarchitectuur, maar ben je toch op loopafstand van het bruisende stadscentrum. Een plek met een ziel waar modern wonen en historie naadloos in elkaar overgaan.

Vragen over deze woning?

Onze verkoopmakelaar Serge van den Brekel staat voor je klaar.
Stel een vraag
Omslagfoto brochure

De verkoper vertelt

83537213_512266br_6843039_1588635_photosRooiHartenpark435038NLTilburg-01.jpg

Om onze website gemakkelijker en persoonlijker te maker, gebruiken we cookies en vergelijkbare technieken. Je kunt altijd zelf kiezen welke soorten cookies je wilt toestaan. Lees hierover meer in onze cookieverklaring.

Wij gebruiken foto's van freepik.com