Zuidoosterfront 55, 's-Hertogenbosch

5213 EB 's-Hertogenbosch
Energielabel D
  • Vier slaapkamers
  • Badkamer op de begane grond
  • Ruime zolderverdieping
  • Zonnige patio
  • Kluswoning
Vraagprijs
€ 395.000 k.k.
Soort constructie
Bestaande bouw
Type
Eengezinswoning en tussenwoning
Locatie
In woonwijk
Woonoppervlakte
95 m²
Perceel
69 m²
Inhoud
356 m³
Bouwjaar
1938
Aantal slaapkamers
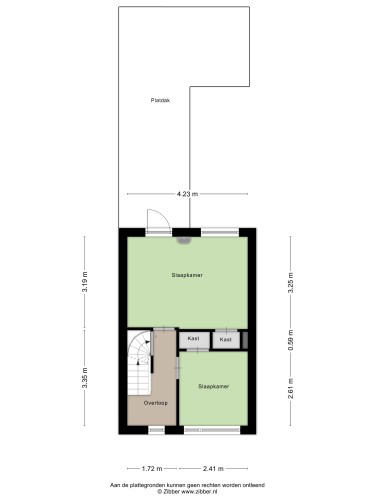
4 Slaapkamers
Tuin
Achtertuin
Hoofdtuin positie
Zuidoost
Garage type
Geen garage
Verwarming
C.v.-ketel
Energielabel
D Hoe kan ik mijn huis verduurzamen? Huis verduurzamen?
Uitgelicht

Voel jij je al thuis?

Fijne lichtinval

Fijne lichtinval

Ruimte

In een rustige straat in de geliefde wijk Graafsepoort staat deze karakteristieke jaren ’30 woning met verrassend veel ruimte en mogelijkheden. Met vier slaapkamers, een zonnige buitenruimte en een badkamer op de begane grond vormt dit huis een solide basis voor wie een woning naar eigen smaak wil moderniseren.

Entree met toegang tot de woonkamer. De woonkamer heeft een prettige lichtinval en staat in verbinding met de keuken. De gesloten keuken is voorzien van inbouwapparatuur en geeft toegang tot de patio.

Veel licht

Potentie

Ruime badkamer

De woning is met name geschikt voor starters, jonge gezinnen of tweepersoonshuishoudens die waarde hechten aan ruimte, ligging en de kans om een eigen woonstijl te realiseren.

Op de begane grond bevindt zich tevens een ruime badkamer met ligbad, douche, wastafel, toilet en aansluiting voor wasapparatuur. Dankzij de lichtkoepel komt er aangenaam daglicht binnen.

Vier slaapkamers

Vier slaapkamers

Ruimte voor iedereen

Met vier slaapkamers op de eerste verdieping is er plek genoeg voor het hele gezin. Denk aan een ruime master bedroom, gezellige kinderkamers of een fijne thuiswerkplek.

Openslaande deuren

Zuidoosten

Zon

De woning beschikt over een zonnige buitenruimte op het zuidoosten, waar je een groot deel van de dag van de zon kunt genieten.

De ligging in Graafsepoort is een groot pluspunt: een rustige, groene woonomgeving met voorzieningen zoals winkels, scholen en sportfaciliteiten in de directe nabijheid. Ook het centrum en recreatiegebied de IJzeren Vrouw zijn eenvoudig bereikbaar.

Wil je hier meer over lezen?

Download de brochure

Vragen over deze woning?

Onze verkoopmakelaar Patrick van Meersbergen staat voor je klaar.
Stel een vraag
Omslagfoto brochure

De verkoper vertelt

Ik heb hier met veel plezier gewoond. De woning ligt op loopafstand van het centrum van Den Bosch en diverse winkels, wat het erg comfortabel maakt. Het is een fijne, rustige wijk met prettige buren, waardoor het echt als thuis voelt. Nu heeft zich de mooie kans voorgedaan om in het ouderlijk huis te gaan wonen, waardoor ik deze plek ga verlaten.

Om onze website gemakkelijker en persoonlijker te maker, gebruiken we cookies en vergelijkbare technieken. Je kunt altijd zelf kiezen welke soorten cookies je wilt toestaan. Lees hierover meer in onze cookieverklaring.

Wij gebruiken foto's van freepik.com